Previous | Next | Discuss :: Free Advice (General Feng Shui)
Dear Alan,
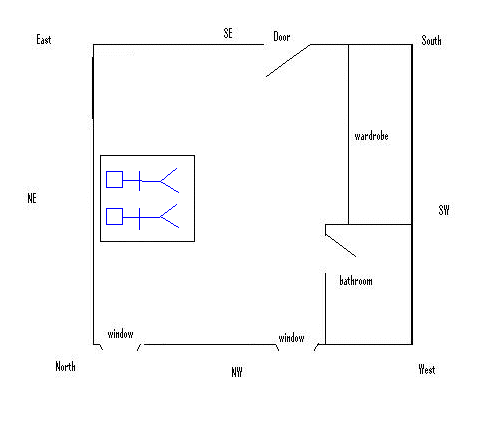
Yes, based on your attachment, the layout is the most favourable (nw-bedplacement-1.gif) based on Shapes and Form Feng Shui.
An alternative file: nw-bedplacement-2.gif shows the next best alternative (less the placement of the dressing table - as it is a poison arrow aimed partially at the bed. The dressing table should be placed further away or tilted away (if it does not have a dressing mirror on it).
Warmest Regards,
Cecil
On 5/30/2002 10:59:00 PM, Alan Yap Ching Chuen wrote:
>Dear Cecil
>
>I hope you can give me some
>advice on my master bedroom
>arrangement. My gua no. is 6
>and my wife is 9, I know my
>good directions are bad for my
>wife but what to do...I
>married her. So can you advice
>me on my room layout whether
>is good or bad based on me and
>advice some remedies for my
>wife. My house is facing NW
>and the bed is also facing NW.
>I have attached a layout plan
>of my room.
>
>Thanks a lot.
>
>Alan
nw-bedplacement-2.gif
2nd best alternative (7,194 bytes)
nw-bedplacement-1.gif
Best placment (8,113 bytes)
|
|
[ Site Search | Forum Search | Picture Search | Site Map ] |
|
|
|
|
||
|
Help Desk: (65) 9785-3171 |
||
|
|
|
|
|
Highlights |
|
Extend your learning with Master Cecil Lee's Applied Feng Shui Made Easy Book. |
|
Site Navigation |
|
|
|
|
![]()